Listing
6672 Brookeridge Drive
Hahira, GA MLS: 147056
Property Description:
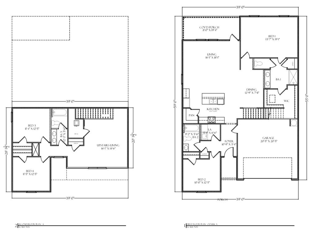
Discover 6672 Brookeridge Drive in Phillips Place, our new home community in Hahira, GA. The Ozark floorplan features 4 bedrooms, 3 bathrooms, and approximately 2,458 square feet. As you enter the home on the first floor, you are met with the foyer featuring a full bathroom and first additional bedroom perfect for guests. Walking past the foyer is a large open concept living space including the kitchen, living room and dining space. The kitchen includes granite countertops, under mount sink, smooth top range, stainless steel appliances, pantry, stylish shaker cabinetry, and a center island. With natural light and nearby covered patio access, the living and dining area are integrated perfectly. Towards the back of the main living space is the primary bedroom. This bedroom is a spacious and relaxing space that includes an attached primary bathroom. The double vanity, separate toilet, shower and walk-in closet will provide a haven of relaxation. Returning to the foyer you will find stairs leading to the 2nd floor. Additional bedroom 2 and 3 are both located on the 2nd floor with a gorgeous full bathroom. This bathroom features dual vanities, a soaking tub, and toilet. You will also find a second living space to use however best fits your needs. Each home is built with our Smart Home Connected package. This plan is designed with modern amenities and the convenience of everyday life in mind.





































